Поиск инвестора в строительство гостиничного комплекса
Приглашаем инвесторов для участия в строительстве комплекса по оказанию услуг населению в г. Ивацевичи (Брестская область) по адресу: ул. Коссовская, 2.
Проект включает:
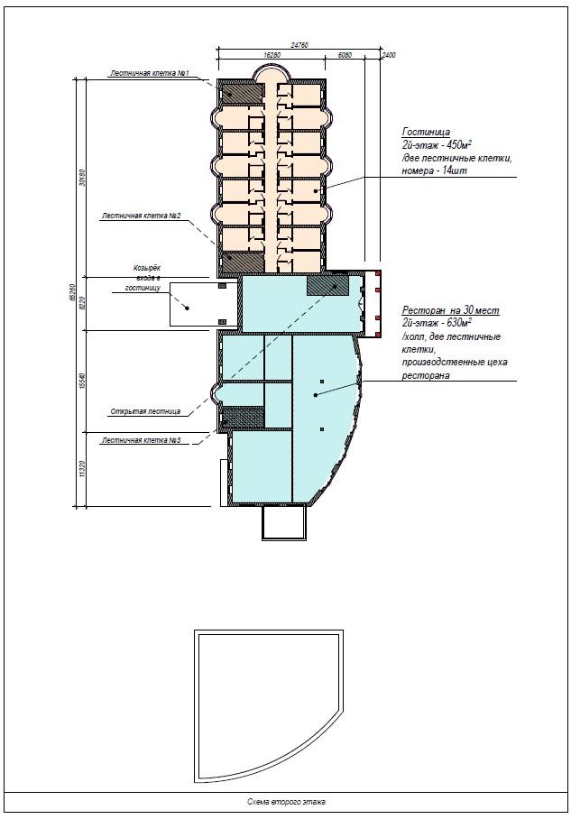
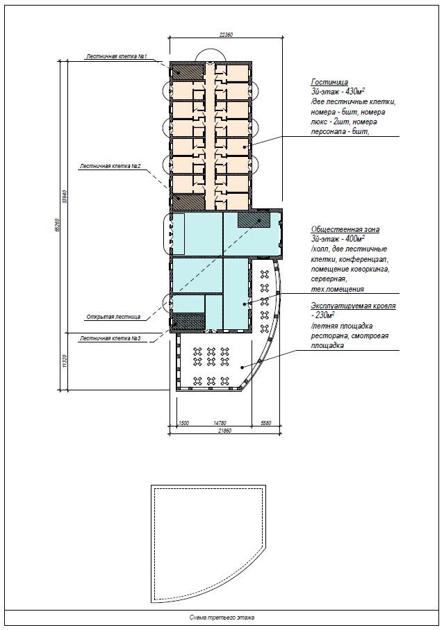
- Гостиницу на 40 мест (номера бизнес-класса, одноместные и двухместные номера, в том числе номер для маломобильных гостей).
- Ресторан (247 м2, до 165 человек), кафе-бар (186,62 м2, до 124 человек), буфет (74,89 м2, до 50 человек).
- Торговый объект (357 м2).
- Парикмахерскую (7 рабочих мест).
- Бильярдную и зону развлечений.
Преимущества проекта:
- Уникальное расположение: рядом спортивные объекты (Ледовый дворец, плавательный бассейн, легкоатлетический стадион).
- Высокий спрос: отсутствие конкуренции в районе, значительное количество спортивных мероприятий (соревнования по хоккею, плаванию, легкой атлетике).
- Туристическая привлекательность: комплекс расположен на пути к Дворцу Пусловских в Коссово, востребован среди белорусских и иностранных туристов.
- Перспективы развития бизнеса в регионе, формирование положительного имиджа района.
Проект ориентирован на комплексное предоставление гостиничных и бытовых услуг, организации досуга и общественного питания. На сегодняшний день в регионе нет аналогичных предложений, что делает инвестиции особенно выгодными.
Заинтересованы в инвестиционном сотрудничестве?
Свяжитесь с нами для обсуждения условий!
